Location
Development Extent
Status
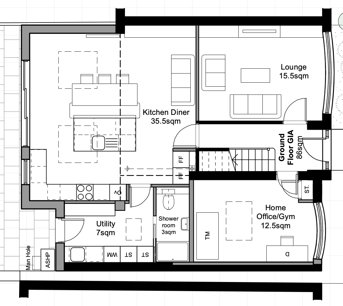
The existing 60’s semi-detached property had a small kitchen, dining room, lounge and office, all linked by many doors, restricting the layout and useable space. Whilst our client wanted to create a new extension, we also felt we could utilise the existing footage to be more efficient and link the space seamlessly.
The proposal was to extend and combine the spaces to create a front lounge, and add a rear kitchen diner with a utility & WC. As this would be losing the front office space, we looked to covert the garage as well, to regain this crucial private WFH space.
The new rooms were spacious, with large windows and doors, and offered the modern living standards we are all looking for achieve in any ideal home. Externally we created a wrap around pitched roof to suit the existing 1st floor windows and meet with the eaves of the mansard roof. Another key consideration was the rear garden which was not that large, we did not want the extension to eat too much into the amenity.
The new layout has not only provided more functional space internally, but has allowed the house to connect with the rear garden. Additional works, such as replacing the existing roof tiles, upgrading the front doors & porch area and refurbishment of the existing upstairs bathroom have helped to give the house, as a whole, that new feeling, knowing their home now works for them.
Our projects




